

Michael Laprairie / Jayman Realty Inc.
MLS® # A2279477
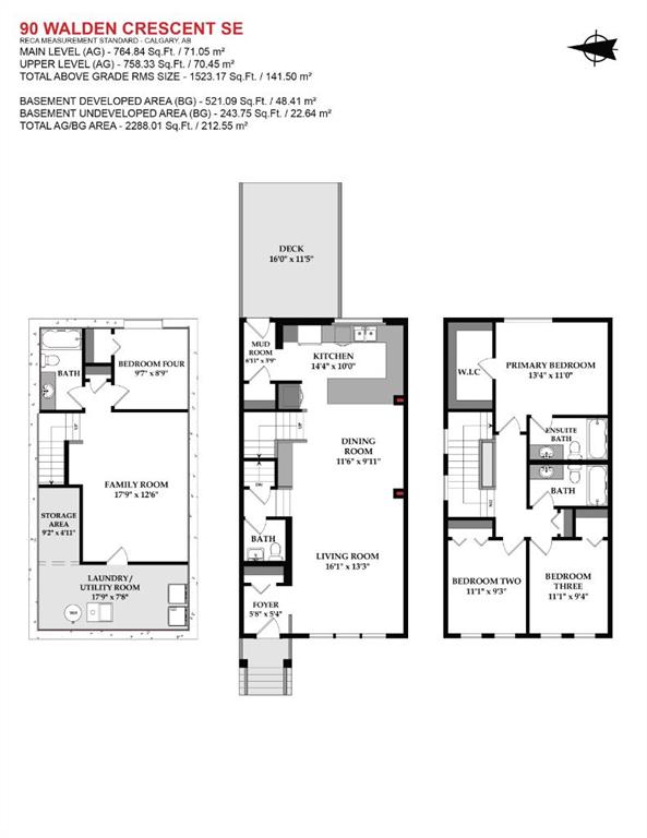
CHECK THIS ONE OUT! | JAYMAN BUILT | 4 BEDROOMS | FINISHED BASEMENT | 3.5 BATHS | AIR CONDITIONED | 2288+ SQ FT OF LIVING SPACE This almost brand-new home—a best-selling model custom-built by the original owners—offers timeless style, modern upgrades, and a highly functional layout for today’s busy families. Set on a traditional lot (not zero-lot line) and located on a family-friendly street just steps away from ponds, parks, ice rink, pathways, schools, and shopping, this home delivers both comfort and c...